Перепланировка
Модератор: Klein
Страница 42 из 43 [ Сообщений: 639 ]
|
-
0 : 4
+
Домовой писал(а): : 8.07.2013 14:27 Grig Здравствуйте, Юля! Если вас не затруднит, напишите, пожалуйста, от а до я, с чего начали и сколько по времени это заняло? я насчет разрешения на перепланировку и сам ремонт. спасибо)))))))))))) и БТИ у каждого разный? вообще без понятия, где находится? Добрый день! Если ничего не забуду Началось все в начале февраля,а закончилось пару недель назад)) 1. Пойти в проектную организацию (организация должна иметь допуск СРО, например, БТИ, "СВ-проект" и другие) и сделать проект перепланировки 2. Пойти в департамент по архитектуре всем собственникам с проектом и документами (свидетельство о регистрации, документ, на основании которого квартира перешла в вашу собственность, документ, удостоверяющий личность) и копиями этих документов, и написать заявление на перепланировку (пишет каждый собственник). 3. Получить разрешение на перепланировку 4. Делать ремонт 5. По окончанию ремонта идти в архитектуру и сообщить, что перепланировка произведена в соответствии с проектом. Это можно сделать смело за месяц до окончания ремонта, т.к. они долго оформляют акт приемочной комиссии, с которым вы потом идете в БТИ. 6. Идти в регистрационную палату и встать там на кадастровый учет. Взять соответствующую справку 7. С актом приемочной комиссии и справкой из регистрационной палаты идти в БТИ и вызвать на замеры. Приходит БТИ, делает замеры. Через 2 нед. выдают новый тех. паспорт. БТИ находится: ул. Дзержинского, 6 Последний раз редактировалось Grig 17 авг 2015, 04:36, всего редактировалось 4 раз(а). |
|
-
голос
+
КолючаЯ
______________
Нам банк давал добро на перепланировку (Сбербанк) ◊ ))) Обменяю д/с Буровичок на д/с Солнечный город. В связи с переездом. Группа 5-6 лет. |
|
-
голос
+
Elvira2904
______________
А какую вы делали перепланировку ? во мне куча изюминок. я вообще кекс |
|
-
голос
+
КолючаЯ
______________
Стены двигали, санузел увеличили за счёт коридора и кухни и балкон присоединили (в 2011 году было ещё можно). Когда в ДАиГ брали разрешение на проведение работ там потребовалось согласие банка. ◊ ))) Обменяю д/с Буровичок на д/с Солнечный город. В связи с переездом. Группа 5-6 лет. |
|
-
голос
+
Elvira2904
______________
Спасибо обнадежили а сейчас балкон уже нельзя присоединять к жил площади ?во мне куча изюминок. я вообще кекс |
|
-
голос
+
КолючаЯ
______________
я слышала что нет. С 2012 года вроде уже нельзя. Мы в 2011 разрешение получали, в 2012 ремонт завершали, нам кто принимал перепланировку сказал что мы успели. ◊ ))) Обменяю д/с Буровичок на д/с Солнечный город. В связи с переездом. Группа 5-6 лет. |
|
-
голос
+
КолючаЯ писал(а): :15 мар 2016, 12:20 №619 а сейчас балкон уже нельзя присоединять к жил площади ? нет. ходила недавно узнавала ![]() |
|
-
голос
+
так а почему все-таки раньше можно было присоединять, а сейчас нет, что изменилось в этих балконах то? если сто лет можно быыло
|
|
-
голос
+
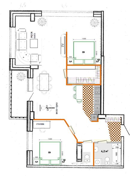
Девочки, знающие про перепланировку, есть вопрос к вам. На данный момент разрешено ли законом переносить часть кухни в коридор? Т.е. коммуникации перенести туда, где по проекту коридор. При этом не ставить перегородку, разделяющую коридор с комнатой, по сути превратить комнату в кухню, но с коммуникациями на площади коридора. (надеюсь понятно объяснила) Вот как Катара нарисовала. Это можно согласовать?
_____________________________________________________ Уважать или не уважать человека — ваш выбор. Относиться уважительно — ваше воспитание. |
|
-
голос
+
матрица писал(а): :25 май 2016, 16:46 №623 коммуникации перенести туда, где по проекту коридор в коридор раньше было можно точно, мы санузел за счет коридора увеличили, нам согласовали. Вроде там ключевым условием было что нельзя мокрое над жилыми помещениями размещать (спальни, залы) ![]() ◊ ))) Обменяю д/с Буровичок на д/с Солнечный город. В связи с переездом. Группа 5-6 лет. |
|
-
голос
+
Добрый день!
пожалуйста, подскажите конкретную проектную организацию - кто куда обращался за проектом кроме СВ-проект, там нас закормили завтраками ![]() |
|
-
голос
+
Я в БТИ проект делала 2 года назад
|
|
-
голос
+
B_girl
______________
Мы на Кайдалова 30 делали, но название я не помню ![]() ◊ ))) Обменяю д/с Буровичок на д/с Солнечный город. В связи с переездом. Группа 5-6 лет. |
|
-
голос
+
Может, кто поделится опытом? Купили квартиру, -перепланировка не узаконена. Ничего не сдвинуто, не снесено, просто кухня с залом местами поменяны. Плесень появилась, вызвали ЖЭУ и вот нам в награду - предоставить разрешение на перепланировку.
Позвонила в одну фирму - 35000 "под ключ" . Может кто-то сам делал? Стоит за это браться или лучше сразу заплатить и не париться? ![]() |
|
-
голос
+
Zigmira
______________
тут надо сначала самим определиться - сможете ли вы законно оформить эту перепланировку или нет? мокрые зоны (кухня, туалет, ванная) не могут находится над жилыми помещениями поэтому первый вопрос - на каком этаже вы живете? если вы живете на первом этаже или под вами есть технические/коммерческие помещения (магазин например), то узаконить вы сможете сами а вот если под вами живут соседи, то вам не дадут разрешение на законную перепланировку Цитата: запрещен перенос либо обустройство кухни в пределах жилой зоны квартиры (согласно правительственному постановлению от 26 января 2006 г. под №47, пункт 24). Этот пункт не может браться в расчет, если под жилплощадью размещено нежилое помещение, в этом случае, ухудшение условий исключено; первоначально можно обратится в Службу жилищного контроля и строительного надзора ХМАО Югры Адрес: Ханты-Мансийский АО, Сургутский р-н, Сургут г., ул. Маяковского, 21а Телефон:+7 (3462) 52-53-59, +7 (3462) 52-53-66, +7 (3462) 52-53-67 Часы работы: вт-пт 9:00–17:00, перерыв 13:00–14:00 там же и подскажут какие документы им нужны и в каком виде ![]() ◊ Не зли меня, мне уже трупы прятать некуда!! Да ладно, шучу я, шучу, есть ещё место |
|
-
голос
+
Спасибо огромное
|
|
20 мар 2026, 01:35 -4 °C
|
| Вы не можете начинать темы Вы не можете отвечать на сообщения Вы не можете редактировать свои сообщения Вы не можете удалять свои сообщения Вы не можете добавлять вложения |
...

Если ничего не забуду
а сейчас балкон уже нельзя присоединять к жил площади ?


Позвонила в одну фирму - 35000 "под ключ"
. Может кто-то сам делал? Стоит за это браться или лучше сразу заплатить и не париться? 

